扫一扫,关注我们

华夏能源网

投稿与合作

欢迎来到华夏能源网,如有新闻报道、品牌传播、稿件发布需求,请按以下方式联系我们: 一、免费发布:我们欢迎能源、财经及相关领域有较强新闻价值、较高思想水准的优质稿件,请附上联系方式投稿至tougao@mail.hxny.com,我们将择优、免费刊发。如48小时内没有回复,请自行处理您的稿件。 二、定制服务:如果您有更多的产品宣传、公关传播需求,我们很乐意为您提供专业的定制化服务,欢迎垂询QQ/微信:805922102,邮件:hezuo@mail.hxny.com。

"华夏能源网研究院"微信公众号

专注能源市场与政策研究,为零碳未来注入思想动力!


热点话题
首页 > 新闻 财经 > 电力 > 正文

看德国的电气图纸什么样,就知道差别有多大!

2022-11-17 10:14:44   生成海报 收藏
说起德国人,人们通常想到的词汇是:严谨、守时、严肃、认真。

作者 / 电力四射

来源 / 电力四射

说起德国人,人们通常想到的词汇是:严谨、守时、严肃、认真。那么德国人设计的电器图纸又是怎样的呢,和我国的又有什么区别呢?

今天在这里简选一个冷料供给仓的图纸,希望对大家有所帮助。

图一:总览
   

设备的生产日期、柜内电压、电流、功率、绝缘等级、导线的截面积、颜色(老外的黑线可是火线、蓝线才是零线,真个设备的所有外部导线严格按颜色区别)。外接端子定义,标注的清楚。

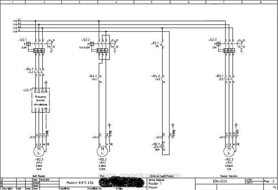
图二:供电源
    

老外的图纸和接线是没有线号的,标的是元件,给元件编号,元件的几号触点接的是哪里,很清楚,不用再去满柜子找线号了。空气开关过载保护电流全部都标在图纸上,换新开关时方便调整,省去再去查和算的麻烦。

图三:负载输出
    

变频器的型号、电机的功率、电流、及过载保护电流全部标注。

图四:Mometom模块供电源,及Fip/IO网络
     

模块型号也有标注。注意3.1标明是电源从哪里来,3.8是标明去哪儿了。

图五:模块的输入,输出
    

端子号上中间标的是程序内这个点的地址,4.2下方的那一堆触点标明的是在程序里的逻辑相关。

图六:出柜端子的定义
    

不是说国外的月亮比咱们的圆,德国人的敬业精神是非常值得尊敬的。在工作中多学习老外的严谨作风,特别是在细节上。

热搜一下 : 德国 电气图纸
555

最新文章
    您可能感兴趣的文章
    本文作者
    • 默认头像

      简介:

      最新文章
    更多> 快讯
    Top10 48H热文榜
    更多> 专题策划
    更多> 论坛 / 活动
    合作伙伴:    更多>
    友情链接:    更多>
    Copyright © 华夏能源网 京ICP备13031718号-1   
    京公网安备11010502000347
    2022-11-17 10:14:44
    看德国的电气图纸什么样,就知道差别有多大!
    长按右侧二维码阅读原文
    更多好文请关注华夏能源网公众号:hxny3060
    立足能源 聚焦双碳 深耕财经
    长按图片保存到本地